ul. Szlachecka, Białołęka
750000.00
PLN
pow:
50.41
m2
Typ nieruchomości
Mieszkanie
Lokalizacja:
Szlachecka, Warszawa, Polska
Liczba kondygnacji:
3
Powierzchnia całkowita:
50.41
Powierzchnia użytkowa:
0.00
m2
Liczba pokoi:
3
Rok budowy:
0
r
Cena za m2:
14878.00
PLN
bliska Białołęka || 3 pokoje z balkonem || miejsce parkingowe w garażu || Komórka lokatorska
CENA MIESZKANIA: 750 000 zł
METRAŻ: 50,41 m2
LOKALIZACJA: ul. Szlachecka, Białołęka, Warszawa
STAN PRAWNY: pełna własność z księgą wieczystą
ZAKUP NA KREDYT: możliwy
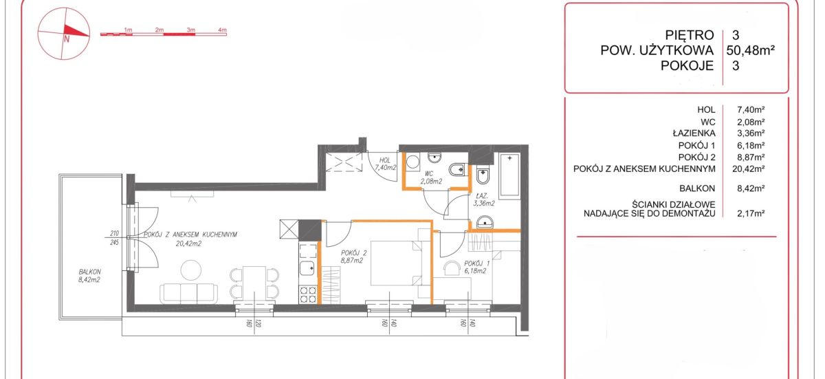
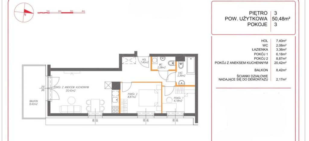
PIĘTRO: 3 na 3 (jest winda!)
BUDYNEK: z 2021 r.
–
OPIS MIESZKANIA
Mieszkanie składa się z:
przedpokoju
salonu z aneksem kuchennym z wyjściem na balkon o powierzchni ok 8 m2
łazienki z wanną
toalety
dwóch sypialni
Mieszkanie jest ustawne i funkcjonalne. Okna mają ekspozycje na południe oraz na wschód. Mieszkanie jest w stanie do wprowadzenia.
Układ mieszkania widoczny jest na załączonym do zdjęć, poglądowym planie/rzucie.
W pakiecie z mieszkaniem sprzedawane są:
– miejsce parkingowe w garażu do którego zjeżdża się bezpośrednio windą w cenie 35 000 zł
– komórka lokatorska o powierzchni 1,65 m2 w cenie 20 000 zł.
OPIS BUDYNKU:
wybudowany został w 2021 r.,
monitorowany,
ogrodzony,
posiada windę.
OPIS OKOLICY i KOMUNIKACJI MIEJSKIEJ:
5 min pieszo do przystanku autobusowego „Szlachecka” lub 7 min do przystanku „Zbyszka z Bogdańca”
12 min pieszo do przystanku tramwajowego „Faradaya”
Podróż tramwajem do metra „Bródno” zajmuje ok 5 min, są to 4 przystanki
Samochodem w ok 5 min można dojechać do tzw. trasy S8, która znacznie usprawnia komunikację z innymi dzielnicami.
Blisko też do centrum handlowych Factory Annopol (5 min autem), Atrium Targówek (7 min autem).
Najbliższy sklep osiedlowy Żabka znajduje się w sąsiednim budynku.
Dookoła budynku jest wiele miejsc do spacerów z psem/joggingu
Informacje zawarte w niniejszej ofercie nie są prawnie wiążące i nie stanowią oferty handlowej, w tym w rozumieniu art.. 66 par 1 kodeksu cywilnego
CENA MIESZKANIA: 750 000 zł
METRAŻ: 50,41 m2
LOKALIZACJA: ul. Szlachecka, Białołęka, Warszawa
STAN PRAWNY: pełna własność z księgą wieczystą
ZAKUP NA KREDYT: możliwy
PIĘTRO: 3 na 3 (jest winda!)
BUDYNEK: z 2021 r.
–
OPIS MIESZKANIA
Mieszkanie składa się z:
przedpokoju
salonu z aneksem kuchennym z wyjściem na balkon o powierzchni ok 8 m2
łazienki z wanną
toalety
dwóch sypialni
Mieszkanie jest ustawne i funkcjonalne. Okna mają ekspozycje na południe oraz na wschód. Mieszkanie jest w stanie do wprowadzenia.
Układ mieszkania widoczny jest na załączonym do zdjęć, poglądowym planie/rzucie.
W pakiecie z mieszkaniem sprzedawane są:
– miejsce parkingowe w garażu do którego zjeżdża się bezpośrednio windą w cenie 35 000 zł
– komórka lokatorska o powierzchni 1,65 m2 w cenie 20 000 zł.
OPIS BUDYNKU:
wybudowany został w 2021 r.,
monitorowany,
ogrodzony,
posiada windę.
OPIS OKOLICY i KOMUNIKACJI MIEJSKIEJ:
5 min pieszo do przystanku autobusowego „Szlachecka” lub 7 min do przystanku „Zbyszka z Bogdańca”
12 min pieszo do przystanku tramwajowego „Faradaya”
Podróż tramwajem do metra „Bródno” zajmuje ok 5 min, są to 4 przystanki
Samochodem w ok 5 min można dojechać do tzw. trasy S8, która znacznie usprawnia komunikację z innymi dzielnicami.
Blisko też do centrum handlowych Factory Annopol (5 min autem), Atrium Targówek (7 min autem).
Najbliższy sklep osiedlowy Żabka znajduje się w sąsiednim budynku.
Dookoła budynku jest wiele miejsc do spacerów z psem/joggingu
Informacje zawarte w niniejszej ofercie nie są prawnie wiążące i nie stanowią oferty handlowej, w tym w rozumieniu art.. 66 par 1 kodeksu cywilnego
Opiekun oferty
WELL ESTATE
+48690570099
biuro@wellestate.com.pl
Skontaktuj się z agentem
